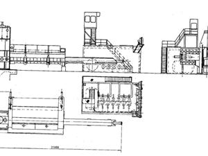
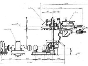
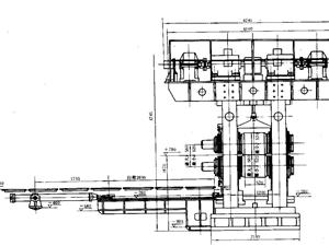
NHI's metallurgical equipment is widely used in domestic steel enterprises. The products that can be designed and manufactured include: cylindrical mixer, belt roaster, single toothed roll crusher, sintering ring cooler, disc pelletizer, chain grate machine, sintering machine, pellet ring cooler, magnesium plate cold (hot) rolling mill, furnace coil rolling mill, profile rolling mill, strip steel